Il Return on investments (ROI), tradotto come ritorno sugli investimenti, indica la redditività e l’efficienza economica della gestione caratteristica a prescindere dalle fonti utilizzate: esprime, cioè, quanto rende il capitale investito in azienda.
In parole povere, tramite alcuni dati facilmente reperibili, si stila una tabella nella quale si può facilmente capire il risparmio energetico, la differenza di costi nel tempo e soprattutto, in quanto tempo si può ammortizzare il costo iniziale per l’installazione dell’impianto a LED. A questo punto è semplice capire che dopo aver ammortizzato l’intero costo, si inizia a “guadagnare” a costo zero.
Prima di poter spiegare cos’è un progetto illuminotecnico è essenziale capire cos’è l’illuminotecnica, ossia, la disciplina che si occupa dell’illuminazione di spazi e ambienti interni ed esterni sfruttando la luce artificiale e solare. Per produrre un progetto di illuminazione, però, bisogna considerare anche altri fattori come la percezione luminosa dell’occhio umano, l’impiego di elettricità nell’illuminazione, i tipi di impianti e lampadine, la sicurezza, il risparmio energetico e l’inquinamento luminoso.
La somma di tutti questi elementi, iniziano a fare un PROGETTO ILLUMINOTECNICO.
Nella pratica, dobbiamo eseguire un sopralluogo per conoscere l’ambiente sul quale dovremo lavorare e tenere conto dei materiali, dei colori e degli arredi che ci sono all’interno o all’esterno di esso. Esiste, infatti, la possibilità di poter illuminare un ambiente anche indirettamente con luce proiettata verso una direzione e riflessa verso un’altra.
A questo punto, tramite pc, riprodurremo l’ambiente e inizieremo ad inserire le luci artificiali tenendo conto di quanta illuminazione vuole il cliente e delle normative vigenti.
Di seguito l’esempio di un progetto illuminotecnico con inserimento di luci LED all’interno di un campo da tennis coperto. Si potrà notare che le luci sono state posizionate in maniera da poter farle riflettere anche sul soffitto. In questo modo, i lumen ad altezza uomo, sono più omogenei in tutta l’area e in particolare sul campo da tennis.
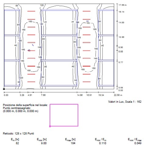
Di seguito invece, proponiamo un esempio di progetto illuminotecnito, in una cella frigorifera nella quale sono posizionate diverse scaffalature. In questo caso si è sfruttato meno il riflesso.




